Kiadó újszerű iroda - Budapest, VI. kerület

KAPCSOLAT
Major László


+36 30 330

berbeado@

Az időpont kérés naptár ikonja
IDŐPONTOT KÉREK
A visszahívás kérés telefon ikonja egy azt körbe ölelő nyíllal
VISSZAHÍVÁST KÉREK
Ajánlom egy ismerősömnek ikon
AJÁNLOM EGY ISMERŐSÖMNEK
Facebook megosztás ikon
MEGOSZTÁS

KAPCSOLATFELVÉTEL

Küldés

Az üzenetet sikeresen elküldtük!
Hiba történt!
INGATLAN ADATAI

Ingatlan jellege

iroda

Belső terület

166 m²

Tájolás

délkelet

Építési állapot

újszerű

Építési mód

tégla

Bútorozottság

nem

Emelet

3.

Épület szintje

3.

Épült

2019

Lift

van

Ingatlan állapot

kívül: jó
belül: újszerű

Klíma

van

Fűtés

fan-coil

Komfort

összkomfort

Parkolás

van fedetlen felszíni beálló

Közműállapot

csatorna: bekötve
gáz: bekötve
villany: bekötve
víz: bekötve

Kilátás

kertre

Energetika

A 2024:

Az időpont kérés naptár ikonja
HTML
Az időpont kérés naptár ikonja
PDF
Kiadó újszerű iroda
Belső azonosító:
VI. Városligetfasor
Ingatlan azonosító:
541_bli

Budapest, VI. kerület, Külső-Terézváros–Diplomatanegyed, Városligeti fasor

Bérleti díj

450 E Ft/hó + Áfa
(2.71 E Ft/㎡) + Áfa

Szobák

5 szoba

Emelet

3

Terület

166 m²

Telek terület

950 m²
INGATLAN LEÍRÁSA
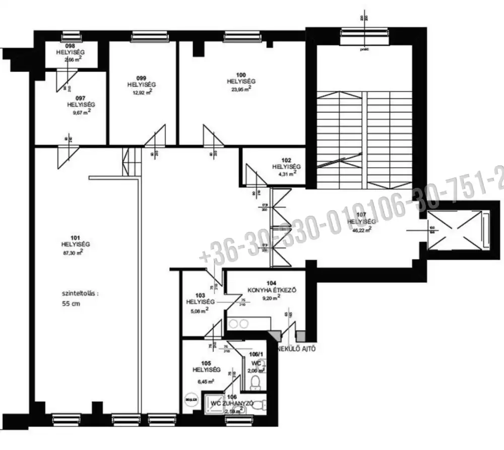
VI. VII. kerületek határán Városligeti fasorban közvetlenül a Városliget mellett található, irodaház jellegű épület, III. emeleti önálló szintjén,igényesen felújított , napfényes, tágas 160 nm –es iroda kellemes munkakörnyezetedben várja első bérlőjét.

III. emelet 166 nm teljes szint.
3 külön 10,12,28 nm -es irodahelyiség + 87 nm -es egy nagy légterű iroda + teakonyha +férfi és női WC-tusoló, tároló található.
Az iroda klímás, új műanyag nyílászárós, frissen festett, új padlószőnyeg, újonnan kiépített konyha-étkező, illetve vizes helyiségek.
06-22 óra között postaszolgálat üzemel.
Bérleti díj : 450. ezer Ft / hó+ ÁFA
+ A teljes körű szolgáltatást,rezsit magában foglaló üzemeltetési költség 100 ezer Ft/hó

Parkolóhelyek bérelhetőek: 25 ezer Ft+ÁFA/db

Minimum 1 évre,3 havi kaució fejében költözhető.
További információ - O63O 33OO 1O1

INGATLAN ADATAI

Ingatlan jellege
iroda
Belső terület
166 m²
Tájolás
délkelet
Építési állapot
újszerű
Építési mód
tégla
Bútorozottság
nem
Emelet
3.
Épület szintje
3.
Épült
2019
Lift
van
Ingatlan állapot
kívül: jó
belül: újszerű
Klíma
van
Fűtés
fan-coil
Komfort
összkomfort
Parkolás
van fedetlen felszíni beálló
Közműállapot
csatorna: bekötve
gáz: bekötve
villany: bekötve
víz: bekötve
Kilátás
kertre
Energetika
A 2024:
TÉRKÉP

Budapest, VI. kerület, Külső-Terézváros–Diplomatanegyed, Városligeti fasor

KAPCSOLAT
Major László
Major László


+36 30 330 0101

berbeado@gmail.com

KAPCSOLAT
Major László

+36 30 330

berbeado@

Az időpont kérés naptár ikonja
IDŐPONTOT KÉREK
A visszahívás kérés telefon ikonja egy azt körbe ölelő nyíllal
VISSZAHÍVÁST KÉREK
Ajánlom egy ismerősömnek ikon
AJÁNLOM EGY ISMERŐSÖMNEK
Facebook megosztás ikon
MEGOSZTÁS

KAPCSOLATFELVÉTEL

Küldés

Az üzenetet sikeresen elküldtük!
Hiba történt!
INGATLAN ADATAI

Ingatlan jellege

iroda

Belső terület

166 m²

Tájolás

délkelet

Építési állapot

újszerű

Építési mód

tégla

Bútorozottság

nem

Emelet

3.

Épület szintje

3.

Épült

2019

Lift

van

Ingatlan állapot

kívül: jó
belül: újszerű

Klíma

van

Fűtés

fan-coil

Komfort

összkomfort

Parkolás

van fedetlen felszíni beálló

Közműállapot

csatorna: bekötve
gáz: bekötve
villany: bekötve
víz: bekötve

Kilátás

kertre

Energetika

A 2024:

Az időpont kérés naptár ikonja
HTML
Az időpont kérés naptár ikonja
PDF
Budapest, VI. kerület - Külső-Terézváros–Diplomatanegyed
Budapest, VI. kerület - Külső-Terézváros–Diplomatanegyed
Budapest, VI. kerület - Külső-Terézváros–Diplomatanegyed
Budapest, VI. kerület - Külső-Terézváros–Diplomatanegyed
Budapest, VI. kerület - Külső-Terézváros–Diplomatanegyed
Budapest, VI. kerület - Külső-Terézváros–Diplomatanegyed
Budapest, VI. kerület - Külső-Terézváros–Diplomatanegyed
Budapest, VI. kerület - Külső-Terézváros–Diplomatanegyed
Budapest, VI. kerület - Külső-Terézváros–Diplomatanegyed
Budapest, VI. kerület - Külső-Terézváros–Diplomatanegyed